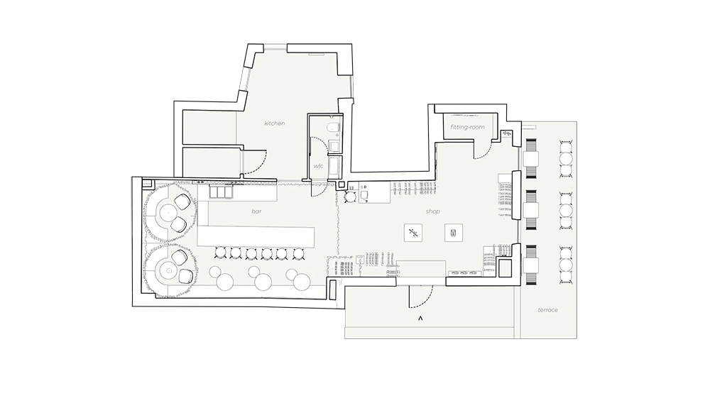
谁懂啊!这家买手店把酒吧藏在暗黑工业风里,一进门就像闯了艺术展✨
风格是暗黑工业 + 轻奢复合风:粗粝水泥肌理裹满冷调质感,镜面 + 金属偷偷勾出高级感,白天是极简买手店,晚上红光一落直接变氛围酒吧 —— 两种业态嵌在同一个空间里,居然丝滑得像没分家。
这设计的优势真的戳中 “引流” 痛点:
业态王炸组合:逛买 + 小酌二合一,不管是逛街还是休闲都能留客;
出片率焊死:水泥的粗粝、金属的冷亮、红光的暧昧,随便拍都是高质感大片;
时段适配满分:白天冷调显货,晚上暖光衬氛围,一天两种用法不浪费空间;
动线顺到离谱:展示区和酒吧区互不打扰,逛累了转身就能坐下来歇着。
其实这种 “买手店 + 酒吧” 的复合空间,不是堆风格就行 —— 怎么让业态不打架、材质反差不违和、灯光适配不同时段,都是设计巧思。火星人教育的设计课里,会教从业态融合到材质搭配、灯光分区,把 “酷空间” 变成能落地的引流业态~
要不要我帮你整理一份这类复合空间的业态布局要点?
艺术家:kidz studio
软件:Photoshop,Illustrator,Photoshop Lightroom,ArchiCAD,Autodesk 3ds Max,Autodesk Revit,AutoCAD ,Architecture (All Versions),Corona Renderer,SketchUp
声明:本站所有文章,如无特殊说明或标注,均为本站原创发布。任何个人或组织,在未征得本站同意时,禁止复制、盗用、采集、发布本站内容到任何网站、书籍等各类媒体平台。如若本站内容侵犯了原著者的合法权益,可联系我们进行处理。














